An interesting possibility is the purchase of two plots of land from the neighbor, totaling 6 hectares (1 hectare where gasstation building is and 5 hectares).
The land houses a former gas station/restaurant/residential property of approximately 400 m². The complex closed more than 20 years ago after the tunnel under the entrance to Hvalfjörður was opened.

Below is an extensive photo gallery of the site, with the location of Petur’s land relative to Hugarró indicated in the last two images.
Value for our project
The owner is 84 years old and thinks his property is worth like Euro 600-700K or even more. Which all brokers think is absurd. But his sons may settle for less.
The thing is: down the line it would provide space for 5 more cabins (left of small creek that is surrounded by trees). And 5 more cabins mean abouts Euro 800k in extra revenue each year. I’d say the land investment pays itself back in 3 years without taking into account the increase in land value.

Furthermore, the construction of a short airstrip for ultralight aircraft is worth considering. There’s an active ultralight community in Iceland, which is an interesting target group that would appreciate our project. Furthermore, this would offer the opportunity to offer sightseeing flights. For the same reasons, a helipad could also be a valuable addition for helicopter landings and takeoffs. A key aspect is the absence of noise pollution directly adjacent to the hotel, the hot springs, and the wellness center.
And given the enormous potential for outdoor activities we need space for horses, quads, jetski’s, gear, workshop and housing for employees.
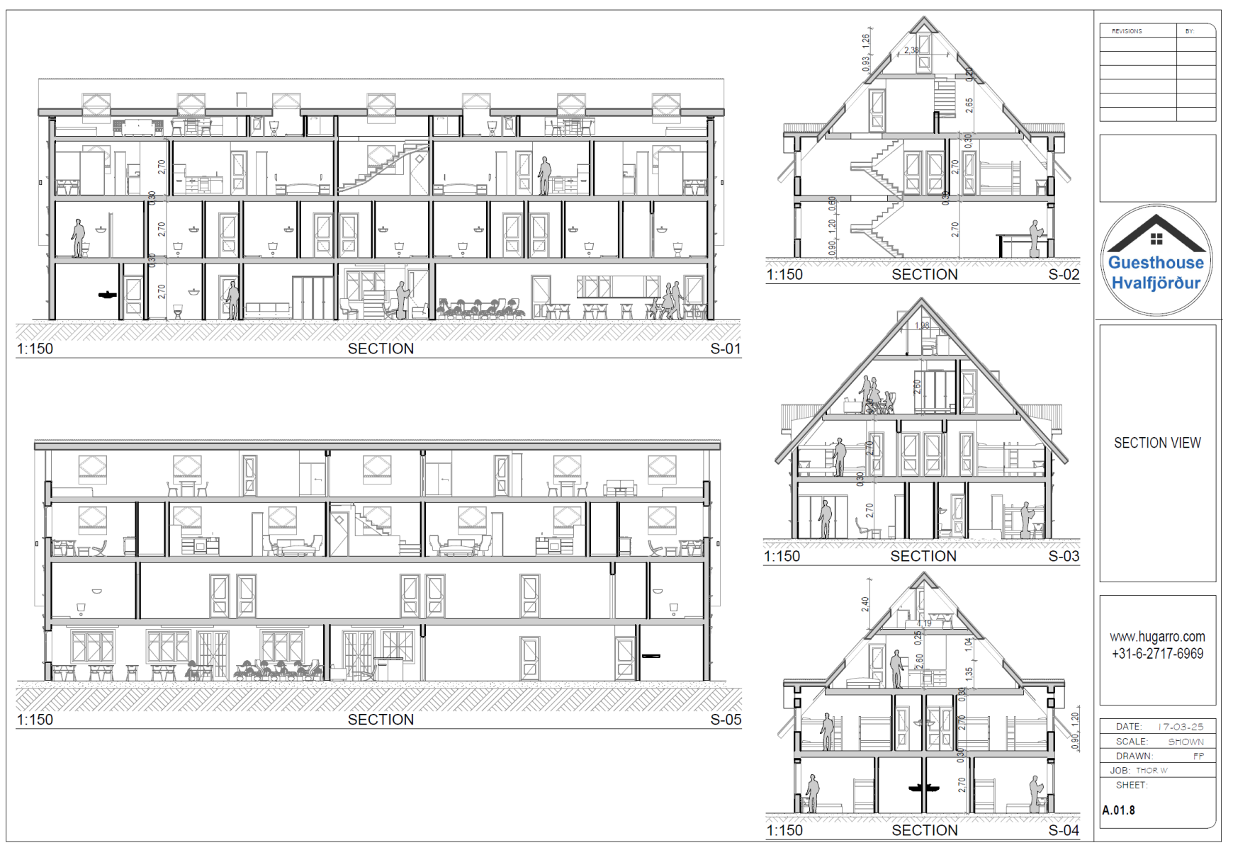
Another option might be a guesthouse that is shared by staff and guests. See drawings below:
That would mean even more revenue each year (early estimate 700-900K) . And where we have the staff cabins on our land we could put meeeting cabins to generate additional revenue.
